Číslo zakázky: 1046
Aktualizace před 9 hodinami
novinka
Prodej rodinného domu 3+1, Palackého ulice v Chropyni
Palackého, Chropyně, okres Kroměříž
Dispozice
3 pokoje
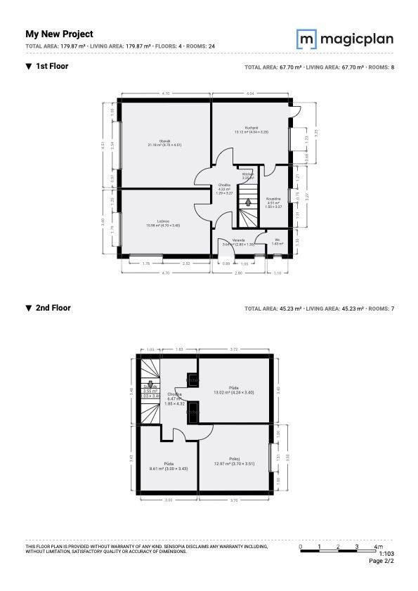
Užitná plocha
80 m2
Plocha parcely
923 m2
Budova
Cihlová
Typ objektu
Rodinný
Stav objektu
Dobrý
Prodej rodinného domu v Chropyni v klidné lokalitě s uzavřeným pozemkem, přístavky a prostornou garáží.
Tento dům v původním stavu nabízí velkou možnost, vytvořit si domov podle svých představ.
Cihlový dům dispozičně 3+1 s možností dalších 2 podkrovních pokojů vám nabídne dostatečný prostor pro vaši rodinu.
Dům byl vystaven kolem roku 1945. V domě je plynový kotel, který zajišťuje dodávku tepla, voda se ohřívá elektrickým bojlerem a je z vodovodního řádu, dům disponuje i vrtanou studnou. … více
Tento dům v původním stavu nabízí velkou možnost, vytvořit si domov podle svých představ.
Cihlový dům dispozičně 3+1 s možností dalších 2 podkrovních pokojů vám nabídne dostatečný prostor pro vaši rodinu.
Dům byl vystaven kolem roku 1945. V domě je plynový kotel, který zajišťuje dodávku tepla, voda se ohřívá elektrickým bojlerem a je z vodovodního řádu, dům disponuje i vrtanou studnou. … více
V KOSTCE
Provize
včetně provize
Okres
Kroměříž
Obec
Chropyně
Část obce
Chropyně
Ulice
Palackého
Datum aktualizace
22.2.2026
Kategorie
Domy
Typ objektu
Rodinný
Dispozice domu
3 pokoje
Stav objektu
Dobrý
Budova
Cihlová
Počet podlaží objektu
2
Plocha parcely m2
923
Zástavba
Obytná
Elektřina
230V
Voda
Místní zdroj, Dálkový vodovod
Odpad
Veřejná kanalizace
Plyn
Plynovod
Topení
Ústřední plynové
Doprava
Vlak, Silnice, Autobus
Komunikace
Asfaltová
Energetická náročnost
G - Mimořádně nehospodárná
Zaujala vás tato nabídka?
Kontaktujte našeho makléře, rád vám sdělí jakékoliv podorobnosti i předvede nemovitost při osobní prohlídce.
Kontaktujte našeho makléře, rád vám sdělí jakékoliv podorobnosti i předvede nemovitost při osobní prohlídce.
728 125 029