Číslo zakázky: 1170
Aktualizace před 11 hodinami
novinka
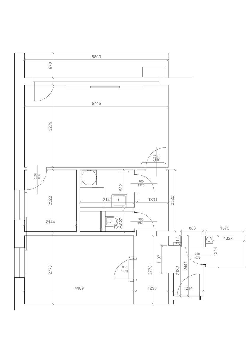
Moderní 2+1 s lodžií po rekonstrukci Praha - Hostivař
Hledíková, Záběhlice, Praha, okres Hlavní město Praha
Dispozice
2+1
Vlastnictví
Osobní
Užitná plocha
54 m2
Podlaží
12
Budova
Panelová
Nabízíme k prodeji světlý a kompletně zrekonstruovaný byt 2+1, který má díky rekonstrukci pracovnu navíc. Byt má velikost 54 m² a prostorná lodžie má 7 m². Byt je situovaný v posledním 13. patře s krásným výhledem na oblast Hostivaře a okolní zeleň.
Byt prošel kompletní rekonstrukcí, díky které nabízí moderní a komfortní bydlení.
Hlavní přednosti bytu
- kompletní rekonstrukce včetně nových oken (plastová trojskla), nových rozvodů elektřiny včetně přívodního kabelu
- klimatizace pro… více
Byt prošel kompletní rekonstrukcí, díky které nabízí moderní a komfortní bydlení.
Hlavní přednosti bytu
- kompletní rekonstrukce včetně nových oken (plastová trojskla), nových rozvodů elektřiny včetně přívodního kabelu
- klimatizace pro… více
V KOSTCE
Poznámka k ceně
cena včetně provize a právního servisu
Provize
včetně provize
Okres
Hlavní město Praha
Obec
Praha
Městská část
Praha 10
Část obce
Záběhlice
Ulice
Hledíková
Datum aktualizace
14.4.2026
Kategorie
Byty
Číslo podlaží v domě
12
Dispozice bytu
2+1
Vlastnicví
Osobní
Stav objektu
Velmi dobrý
Budova
Panelová
Počet podlaží objektu
12
Plocha lodžie m2
7
Lodžie
ano
Celková plocha m2
61
Zástavba
Obchodní a obytná
Elektřina
230V
Voda
Dálkový vodovod
Odpad
Veřejná kanalizace
Plyn
Plynovod
Telekomunikace
Internet, Kabelová televize, Kabelové rozvody
Topení
Ústřední plynové, Ústřední elektrické
Doprava
Silnice, MHD
Komunikace
Betonová, Asfaltová
Energetická náročnost
D - Méně úsporná
Zaujala vás tato nabídka?
Kontaktujte našeho makléře, rád vám sdělí jakékoliv podorobnosti i předvede nemovitost při osobní prohlídce.
Kontaktujte našeho makléře, rád vám sdělí jakékoliv podorobnosti i předvede nemovitost při osobní prohlídce.