Foto
Číslo zakázky: 977
Aktualizace před 5 hodinami
novinka

Prodej řadového rodinného domu se zahradou

Brunnerova, Řepy, Praha, okres Hlavní město Praha
18 999 000 Kč
Hypotéka od 87 147 Kč/měsíc
spočítat
G
G - Mimořádně nehospodárná
Dispozice
5 a více pokojů
Užitná plocha
177 m2
Plocha parcely
294 m2
Budova
Cihlová
Typ objektu
Rodinný
Stav objektu
Dobrý
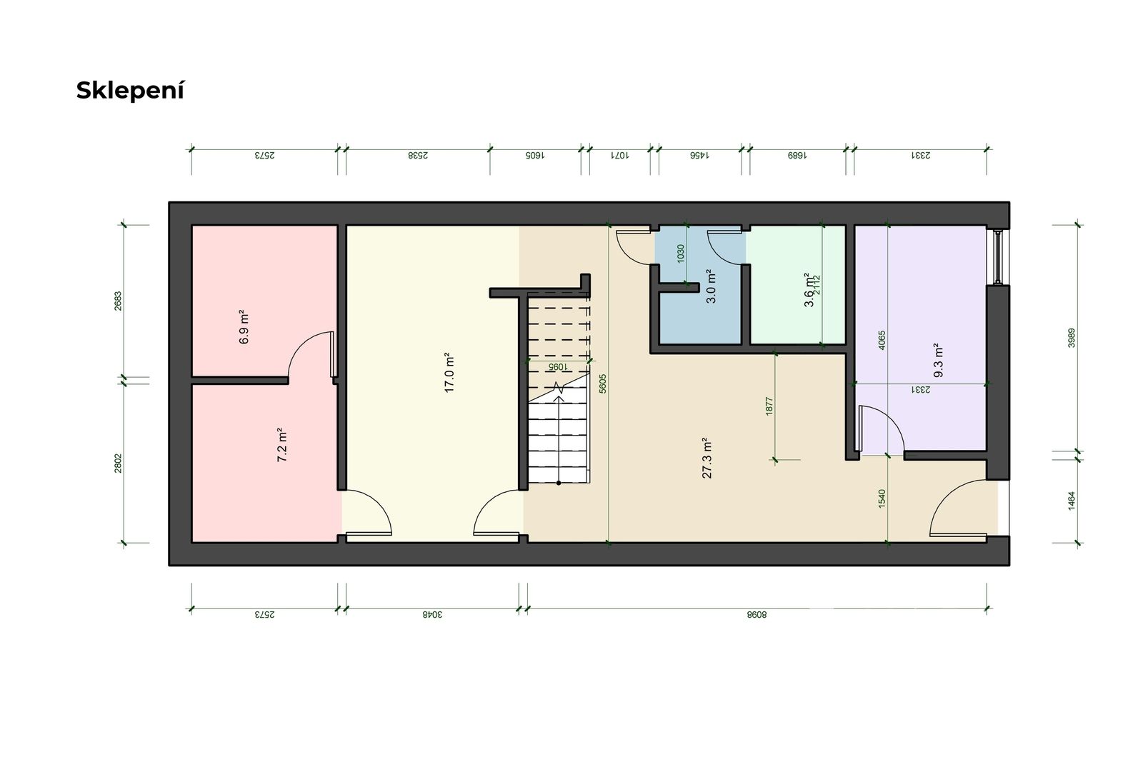
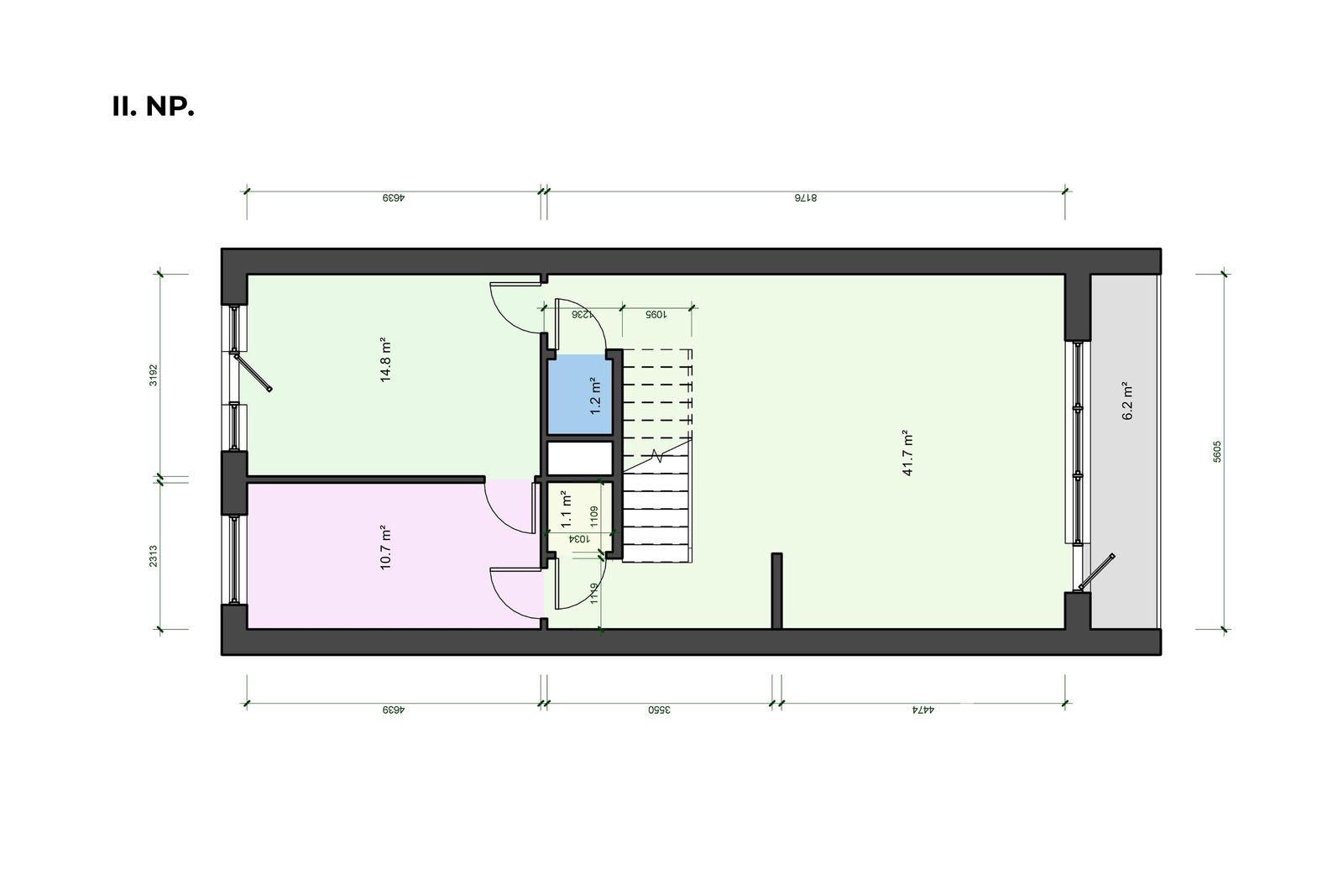
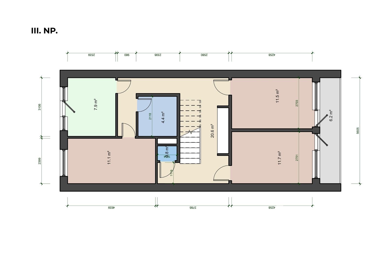
Nabízíme k prodeji řadový rodinný dům, který se nachází v žádané lokalitě Praha Řepy, konkrétně v Brunnerově ulici. Dům je charakteristický prostorným uspořádáním a promyšleným dispozičním řešením všech pater. Disponuje třemi plně obytnými nadzemními podlažími a je celý podsklepený, což poskytuje dostatek úložných a skladovacích možností. V celém domě je instalované podlahové vytápění. Pozemek má celkovou výměru 294 m², přičemž předzahrádka má 84 m², zahrada za domem 118 m² a zastavěná plocha…
více

Kopírovat odkaz

Tisk

Hlídat změny

Sdílet

V KOSTCE

Poznámka k ceně
cena včetně provize a právního servisu
Provize
včetně provize
Okres
Hlavní město Praha
Obec
Praha
Městská část
Praha 17
Část obce
Řepy
Ulice
Brunnerova
Datum aktualizace
13.11.2025
Kategorie
Domy
Typ objektu
Rodinný
Dispozice domu
5 a více pokojů
Stav objektu
Dobrý
Budova
Cihlová
Počet podlaží objektu
3
Zastavěná plocha m2
91
Plocha parcely m2
294
Plocha lodžie m2
13
Lodžie
ano
Celková plocha m2
283
Počet míst k parkování
2
Zástavba
Obytná
Elektřina
230V
Voda
Dálkový vodovod
Odpad
Veřejná kanalizace
Plyn
Plynovod
Telekomunikace
Internet, Kabelová televize
Topení
Ústřední plynové
Doprava
Dálnice, Silnice, MHD, Autobus
Komunikace
Betonová, Asfaltová
Energetická náročnost
G - Mimořádně nehospodárná
Zaujala vás tato nabídka?
Kontaktujte našeho makléře, rád vám sdělí jakékoliv podorobnosti i předvede nemovitost při osobní prohlídce.
Mgr. Radka Váňová
Kontaktujte našeho makléře, rád vám sdělí jakékoliv podorobnosti i předvede nemovitost při osobní prohlídce.
* Povinné údaje
*
*
*
*